Skip to main content

Electric Vehicle Charging Stations

This Project is Now Complete

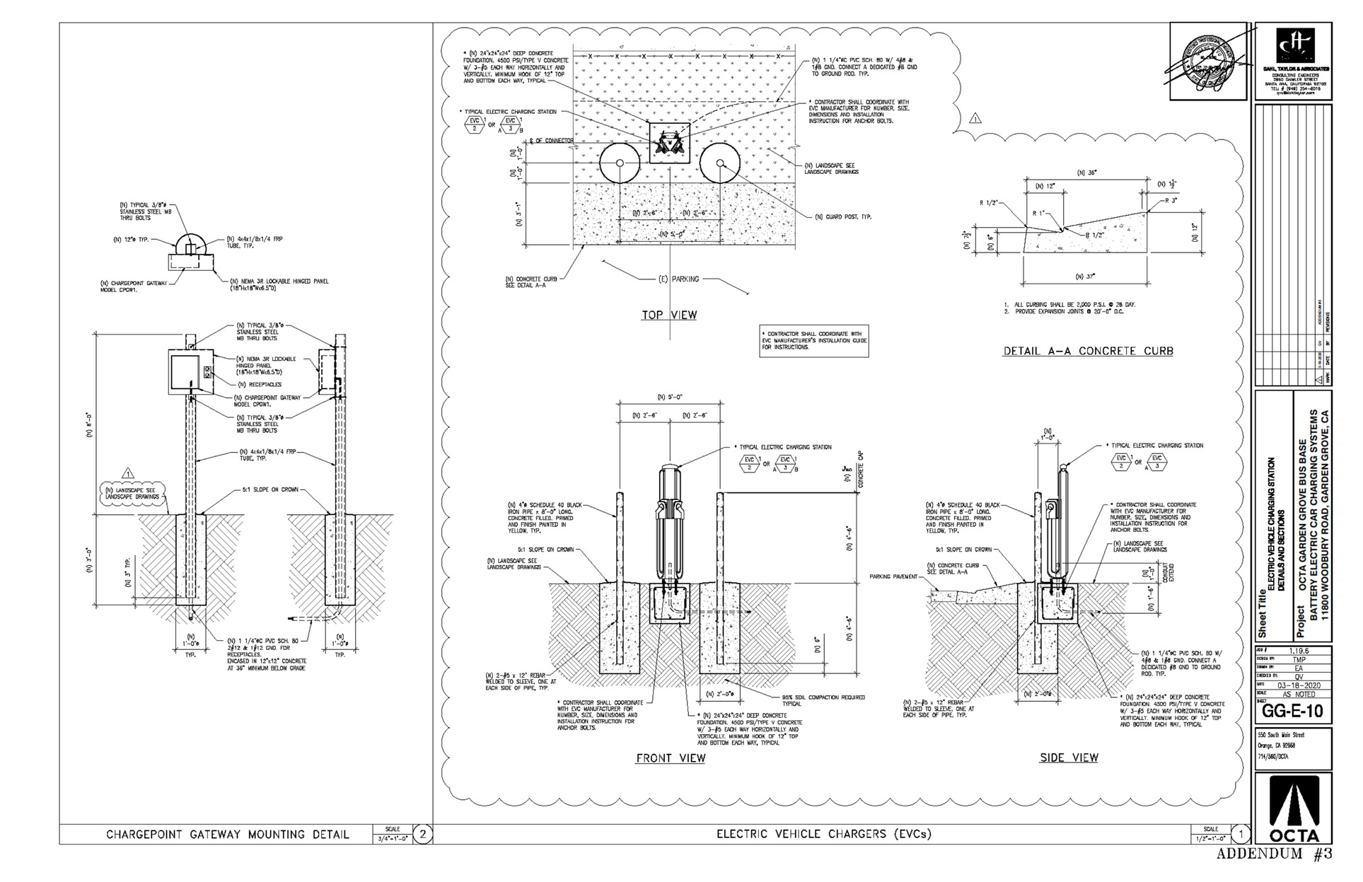
Electric vehicle charging stations were placed at OCTA’s Garden Grove and Santa Ana bus bases to support 30 electric operator relief vehicles and five employee vehicles at each base.



In accordance with the California Environmental Quality Act (CEQA), OCTA has prepared a Notice of Exemption which is available for public review. To access the Notice of Exemption, click here.

In addition, the Notice of Exemption has been filed electronically with the State Clearinghouse and posted on their CEQAnet Web Portal, which may be accessed by clicking here.

The electronic filing and posting of the Notice of Exemption is being implemented in accordance with Governor Newsom's Executive Orders N-54-20 (April 22, 2020) and N-80-20 (September 23, 2020) in response to the threat of COVID-19. For questions regarding the filing and posting of the Notice of Exemption, please contact Cliff Thorne, at cthorne@octa.net.


Project Overview

Electric vehicle charging stations were placed at OCTA’s Garden Grove and Santa Ana bus bases to support 30 electric operator relief vehicles and five employee vehicles at each base. The chargers feature automatic access controls, battery charge levels, energy consumption monitoring, and energy management. 

charging stations

Funding

These chargers will be purchased under a separate contract for an estimated cost of $1.4 million using funding from the state and Federal Transit Administration (FTA).


Project Benefits

The electric vehicle charging stations will support 30 electric operator relief vehicles and five employee vehicles at OCTA’s Garden Grove and Santa Ana bases. Some highlights include:

  • Automatic feature controls
  • Battery change level and energy consumption monitoring
  • Landscape upgrades for environmental enhancement


Resources

Blue pdf icon
pdf
Green leaf icon in a circle
pdf
pdf
Environmental Documents